Квартира для известного баскетболиста: проект в Питере - «Статьи» » Ищи тут
Местоположение
Поиск по объявлениям
Выберите категорию
Марка автомобиля
Тип кузова
Год выпуска
Пробег, тыс. км.
Коробка передач
Тип двигателя
Объём двигателя, л.
Привод
Владельцев по ПТС
Вид техники
Вид техники
Вид техники
Вид товара
Вид объекта
Тип дома
Вид объекта
Количество комнат
Вид объекта
Общая площадь, м2
Материал стен
Этаж
Этажей в доме
Лоджия/балкон
Санузел
Категория земель
Площадь участка, сот.
Расстояние до города, км
Сфера деятельности
График работы
Опыт работы
Стаж работы, лет
Образование
Пол
Возраст, лет
Вид услуги
Вид одежды
Вид одежды
Вид товара
Вид товара
Вид товара
Вид товара
Вид товара
Вид товара
Вид товара
Вид товара
Вид товара
Вид товара
Вид товара
Вид телефона
Вид товара
Вид товара
Вид товара
Вид велосипеда
Вид товара
Вид товара
Вид товара
Вид товара
Порода
Порода
Вид животного
Вид бизнеса
Вид оборудования
Тип объявления
Цена, руб.
Сортировка по
Настройки поиска
Доска объявлений - Ищи тут / Статьи / Квартира для известного баскетболиста: проект в Питере - «Статьи»

    Дизайнеры объединили не только две квартиры, но и два стиля — американскую классику и итальянский гламур

    Вкратце


    Дизайнеры Евгений Жданов и Татьяна Кириллова оформили сразу две квартиры для известного баскетболиста.


    Однушку и трешку объединили, чтобы получить комфортное для жизни пространство. Большая площадь позволила не только оформить просторную зону кухни-гостиной, но и найти место для вместительной гардеробной комнаты.

    Подробности


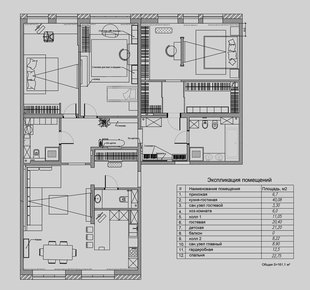
    Чтобы получить достаточно пространства для жизни, молодая пара купила две соседние квартиры. Однокомнатную квартиру отвели под спальню с гардеробной и мастер-ванну. А в трехкомнатной квартире разместили кухню-гостиную, детскую и гостевую.

    Квартира для известного баскетболиста: проект в Питере - «Статьи»

    Владельцы квартиры некоторое время жили в Америке, и им успел полюбиться стиль американской классики. Но при этом пара часто путешествует по Европе, и им также нравится итальянский гламур. Это и определило стилистику интерьера. Его решили в спокойных тонах — от дымчато-серого до пудрового бежевого. Драматизм проявляется лишь в санузлах — для них выбрали графичное монохромное сочетание цветов.

    В отделке активно использовали не только краску, но и декоративные панели. Ими оформили стену за диваном в гостиной и за изголовьем кровати в спальне. Зеркала не только визуально расширяют пространство, но и придают интерьеру шика. Зеркальными панелями обшили торцы простенка, который отделяет зону сна от будуарной зоны в спальне: благодаря этому приему он практически растворился в интерьере.

    В кухне-гостиной нет ни одного шкафа, зато в приватной части квартиры системы хранения максимально вместительные. В гостевой комнате и детской установили по шкафу, а при спальне создали сразу две гардеробные. Большая гардеробная справа от входа предназначена для хранения повседневной одежды, слева — для спортивной. К ним подвели принудительную вытяжную вентиляцию.

    Большую часть мебели для проекта сделали на заказ. В спальне появились зеркальные тумбы и декоративный каминный портал. А для детской подобрали классическую мебель итальянской фабрики DOLFI.

    : спальни, гостиные, детские, прихожие и другое.


    Дизайнеры объединили не только две квартиры, но и два стиля — американскую классику и итальянский гламур Вкратце Дизайнеры Евгений Жданов и Татьяна Кириллова оформили сразу две квартиры для известного баскетболиста. Однушку и трешку объединили, чтобы получить комфортное для жизни пространство. Большая площадь позволила не только оформить просторную зону кухни-гостиной, но и найти место для вместительной гардеробной комнаты. Подробности Чтобы получить достаточно пространства для жизни, молодая пара купила две соседние квартиры. Однокомнатную квартиру отвели под спальню с гардеробной и мастер-ванну. А в трехкомнатной квартире разместили кухню-гостиную, детскую и гостевую. Владельцы квартиры некоторое время жили в Америке, и им успел полюбиться стиль американской классики. Но при этом пара часто путешествует по Европе, и им также нравится итальянский гламур. Это и определило стилистику интерьера. Его решили в спокойных тонах — от дымчато-серого до пудрового бежевого. Драматизм проявляется лишь в санузлах — для них выбрали графичное монохромное сочетание цветов. В отделке активно использовали не только краску, но и декоративные панели. Ими оформили стену за диваном в гостиной и за изголовьем кровати в спальне. Зеркала не только визуально расширяют пространство, но и придают интерьеру шика. Зеркальными панелями обшили торцы простенка, который отделяет зону сна от будуарной зоны в спальне: благодаря этому приему он практически растворился в интерьере. В кухне-гостиной нет ни одного шкафа, зато в приватной части квартиры системы хранения максимально вместительные. В гостевой комнате и детской установили по шкафу, а при спальне создали сразу две гардеробные. Большая гардеробная справа от входа предназначена для хранения повседневной одежды, слева — для спортивной. К ним подвели принудительную вытяжную вентиляцию. Большую часть мебели для проекта сделали на заказ. В спальне появились зеркальные тумбы и декоративный каминный портал. А для детской подобрали классическую мебель итальянской фабрики DOLFI. : спальни, гостиные, детские, прихожие и другое.
    Цитирование статьи, картинки - фото скриншот - Rambler News Service.
    Иллюстрация к статье - Яндекс. Картинки.
    Есть вопросы. Напишите нам.
    Общие правила  поведения на сайте.


  • 1 550
  • 0
  • 30-03-2019, 17:00
-2

Лучшие новости сегодня


Комментарии (0)
Написать
Читайте также другие новости