Модульный дом 100 м , собранный зимой на участке с большим уклоном - «Статьи» » Ищи тут
Местоположение
Поиск по объявлениям
Выберите категорию
Марка автомобиля
Тип кузова
Год выпуска
Пробег, тыс. км.
Коробка передач
Тип двигателя
Объём двигателя, л.
Привод
Владельцев по ПТС
Вид техники
Вид техники
Вид техники
Вид товара
Вид объекта
Тип дома
Вид объекта
Количество комнат
Вид объекта
Общая площадь, м2
Материал стен
Этаж
Этажей в доме
Лоджия/балкон
Санузел
Категория земель
Площадь участка, сот.
Расстояние до города, км
Сфера деятельности
График работы
Опыт работы
Стаж работы, лет
Образование
Пол
Возраст, лет
Вид услуги
Вид одежды
Вид одежды
Вид товара
Вид товара
Вид товара
Вид товара
Вид товара
Вид товара
Вид товара
Вид товара
Вид товара
Вид товара
Вид товара
Вид телефона
Вид товара
Вид товара
Вид товара
Вид велосипеда
Вид товара
Вид товара
Вид товара
Вид товара
Порода
Порода
Вид животного
Вид бизнеса
Вид оборудования
Тип объявления
Цена, руб.
Сортировка по
Настройки поиска
Доска объявлений - Ищи тут / Статьи / Модульный дом 100 м , собранный зимой на участке с большим уклоном - «Статьи»

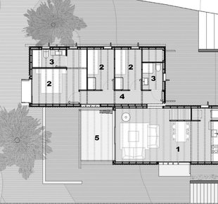
    Когда строительство дома планируется на зимний период, да еще и на сложном участке, одним из самых оптимальных вариантов будет модульная технология.

    Именно такой вариант выбрали архитекторы, проектируя летний дом на лесистом склоне в Испанских Пиренеях. Современное, функциональное здание удалось построить довольно быстро, не выйдя за бюджетные рамки. Стартовые условия были непростыми: рельеф участка имел сложную геометрию, к тому же возведение коттеджа планировалось в зимний период.


    Форма дома продиктована ландшафтными особенностями. Участок имеет вытянутую трапециевидную форму и уклон 20% с перепадом высот до 14 м. Богатую растительность — секвойи и ели — архитекторы и заказчики хотели непременно сохранить. Поэтому проект предполагал минимум земляных работ и ограниченное использование строительной техники.


    Три модуля изготовили на производстве, доставили на строительную площадку и собрали. Они представляют собой каркас из древесины хвойных пород с двойным слоем каменной ваты. Фасады коттеджа имеют вентилируемую конструкцию и отделаны деревом.


    Дом функционально поделен на два блока: в одном организовали три спальни (хозяйскую плюс две гостевые) и две ванные комнаты, в другом соединили гостиную и кухню и надстроили мезонин.


    В доме все располагает к отдыху большой компанией: в просторной гостиной с дровяной печью можно устроить посиделки, терраса в теплые дни идеальна для трапез, дополнительные спальни располагают всем необходимым для гостей, решивших заночевать.

    Модульный дом 100 м , собранный зимой на участке с большим уклоном - «Статьи»

    Большинство окон имеют нестандартную, вытянутую по вертикали форму. Для защиты от солнца используются складные металлические ставни, окрашенные в белый цвет.

    Учитывая небольшую площадь коттеджа, каждый его уголок задействовали по максимуму. К примеру, конструкция под потолком в прихожей предназначена для хранения чемоданов, а над кухней соорудили мезонин, где обустроили уголок для чтения.

    Фундамент собрали из блоков. Почву, выкопанную при интеграции дома в склон, использовали для строительства террас.

    : спальни, гостиные, детские, прихожие и другое


    Когда строительство дома планируется на зимний период, да еще и на сложном участке, одним из самых оптимальных вариантов будет модульная технология. Именно такой вариант выбрали архитекторы, проектируя летний дом на лесистом склоне в Испанских Пиренеях. Современное, функциональное здание удалось построить довольно быстро, не выйдя за бюджетные рамки. Стартовые условия были непростыми: рельеф участка имел сложную геометрию, к тому же возведение коттеджа планировалось в зимний период. Форма дома продиктована ландшафтными особенностями. Участок имеет вытянутую трапециевидную форму и уклон 20% с перепадом высот до 14 м. Богатую растительность — секвойи и ели — архитекторы и заказчики хотели непременно сохранить. Поэтому проект предполагал минимум земляных работ и ограниченное использование строительной техники. Три модуля изготовили на производстве, доставили на строительную площадку и собрали. Они представляют собой каркас из древесины хвойных пород с двойным слоем каменной ваты. Фасады коттеджа имеют вентилируемую конструкцию и отделаны деревом. Дом функционально поделен на два блока: в одном организовали три спальни (хозяйскую плюс две гостевые) и две ванные комнаты, в другом соединили гостиную и кухню и надстроили мезонин. В доме все располагает к отдыху большой компанией: в просторной гостиной с дровяной печью можно устроить посиделки, терраса в теплые дни идеальна для трапез, дополнительные спальни располагают всем необходимым для гостей, решивших заночевать. Большинство окон имеют нестандартную, вытянутую по вертикали форму. Для защиты от солнца используются складные металлические ставни, окрашенные в белый цвет. Учитывая небольшую площадь коттеджа, каждый его уголок задействовали по максимуму. К примеру, конструкция под потолком в прихожей предназначена для хранения чемоданов, а над кухней соорудили мезонин, где обустроили уголок для чтения. Фундамент собрали из блоков. Почву, выкопанную при интеграции дома в склон, использовали для строительства террас. : спальни, гостиные, детские, прихожие и другое
    Цитирование статьи, картинки - фото скриншот - Rambler News Service.
    Иллюстрация к статье - Яндекс. Картинки.
    Есть вопросы. Напишите нам.
    Общие правила  поведения на сайте.


  • 1 389
  • 0
  • 9-08-2019, 18:04
+3

Лучшие новости сегодня


Комментарии (0)
Написать
Читайте также другие новости