Одноэтажная дача 100 м с прозрачными стенами - «Статьи о недвижимости» » Ищи тут
Местоположение
Поиск по объявлениям
Выберите категорию
Марка автомобиля
Тип кузова
Год выпуска
Пробег, тыс. км.
Коробка передач
Тип двигателя
Объём двигателя, л.
Привод
Владельцев по ПТС
Вид техники
Вид техники
Вид техники
Вид товара
Вид объекта
Тип дома
Вид объекта
Количество комнат
Вид объекта
Общая площадь, м2
Материал стен
Этаж
Этажей в доме
Лоджия/балкон
Санузел
Категория земель
Площадь участка, сот.
Расстояние до города, км
Сфера деятельности
График работы
Опыт работы
Стаж работы, лет
Образование
Пол
Возраст, лет
Вид услуги
Вид одежды
Вид одежды
Вид товара
Вид товара
Вид товара
Вид товара
Вид товара
Вид товара
Вид товара
Вид товара
Вид товара
Вид товара
Вид товара
Вид телефона
Вид товара
Вид товара
Вид товара
Вид велосипеда
Вид товара
Вид товара
Вид товара
Вид товара
Порода
Порода
Вид животного
Вид бизнеса
Вид оборудования
Тип объявления
Цена, руб.
Сортировка по
Настройки поиска
Доска объявлений - Ищи тут / Статьи / Одноэтажная дача 100 м с прозрачными стенами - «Статьи о недвижимости»

    Загородные дома со стеклянными стенами популярны в странах Западной Европы — многие европейцы хотят постоянно ощущать единение с окружающим миром. По их мнению, ни к чему намеренно возводить преграды между собой и природой, частью которой мы являемся

    Компания Wahlin Arkitekter спроектировала этот загородный дом по заказу семейной пары. Супруги купили участок на территории южного шведского курорта Тореков (Torekov) и изначально хотели построить традиционный двухэтажный коттедж с большой террасой-палубой и зеленой крышей. Так они представляли себе место, где будет комфортно отдыхать не только летом, но и зимой.

    Одноэтажная дача 100 м с прозрачными стенами - «Статьи о недвижимости»

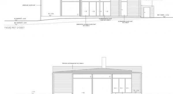
    Однако, рассмотрев различные варианты, предложенные архитекторами, заказчики скорректировали свои планы. Из всего предложенного они одобрили проект одноэтажного здания в модернистском стиле в духе середины прошлого века. Спустя два года работ на живописном склоне появился дом площадью 100 м.


    Прозрачная постройка элегантно вписалась в окружающий пейзаж, расположившись прямо на холме в окружении деревьев, недалеко от морского пролива Каттегатт. Планировка вполне логична: внутреннее пространство поделено на открытую общественную зону и изолированную частную. В репрезентативной части находятся кухня, гостиная и столовая, а в частной - спальни и ванная комната. Несмотря на то, что общие помещения объединены, гостиная условно выделена за счет перепада высот пола. С трех сторон дома под выступающими кровельными свесами, поддерживаемыми прочными стойками, оборудована двухуровневая терраса. Архитекторы намеренно использовали природные цвета и простые материалы, чтобы создать дом, который не будет спорить с первозданной красотой природы.

    Большие стеклянные двери ведут из гостиной на просторную террасу.


    Общественную и частную зоны разграничивает небольшой коридор.

    Две спальни и ванная комната спланированы в задней части дома. Приватность этих помещений обеспечивает деревянный фасад с маленькими окошками.


    : спальни, гостиные, детские, прихожие и другое


    Загородные дома со стеклянными стенами популярны в странах Западной Европы — многие европейцы хотят постоянно ощущать единение с окружающим миром. По их мнению, ни к чему намеренно возводить преграды между собой и природой, частью которой мы являемся Компания Wahlin Arkitekter спроектировала этот загородный дом по заказу семейной пары. Супруги купили участок на территории южного шведского курорта Тореков (Torekov) и изначально хотели построить традиционный двухэтажный коттедж с большой террасой-палубой и зеленой крышей. Так они представляли себе место, где будет комфортно отдыхать не только летом, но и зимой. Однако, рассмотрев различные варианты, предложенные архитекторами, заказчики скорректировали свои планы. Из всего предложенного они одобрили проект одноэтажного здания в модернистском стиле в духе середины прошлого века. Спустя два года работ на живописном склоне появился дом площадью 100 м. Прозрачная постройка элегантно вписалась в окружающий пейзаж, расположившись прямо на холме в окружении деревьев, недалеко от морского пролива Каттегатт. Планировка вполне логична: внутреннее пространство поделено на открытую общественную зону и изолированную частную. В репрезентативной части находятся кухня, гостиная и столовая, а в частной - спальни и ванная комната. Несмотря на то, что общие помещения объединены, гостиная условно выделена за счет перепада высот пола. С трех сторон дома под выступающими кровельными свесами, поддерживаемыми прочными стойками, оборудована двухуровневая терраса. Архитекторы намеренно использовали природные цвета и простые материалы, чтобы создать дом, который не будет спорить с первозданной красотой природы. Большие стеклянные двери ведут из гостиной на просторную террасу. Общественную и частную зоны разграничивает небольшой коридор. Две спальни и ванная комната спланированы в задней части дома. Приватность этих помещений обеспечивает деревянный фасад с маленькими окошками. : спальни, гостиные, детские, прихожие и другое
    Цитирование статьи, картинки - фото скриншот - Rambler News Service.
    Иллюстрация к статье - Яндекс. Картинки.
    Есть вопросы. Напишите нам.
    Общие правила  поведения на сайте.


  • 1 685
  • 0
  • 9-05-2019, 09:05
+1

Лучшие новости сегодня


Комментарии (0)
Написать
Читайте также другие новости